検索結果(大阪府)
オフィス
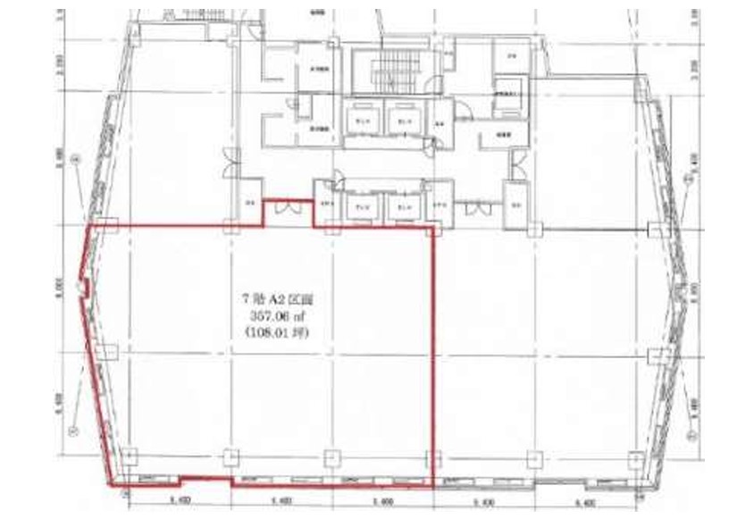
物件番号:00001602
大阪府大阪市西区阿波座1丁目
賃料
183.60
万円
| 管理費 | - |
|---|---|
| 共益費 | - |
| 敷金/保証金 | 12ケ月 |
| 礼金/権利金 | - |
※敷引・解約引については別途お問い合わせください
|
建物/ 専有面積 |
357.10㎡ |
|---|---|
| 土地面積 | - |
| 築年月 | 1991年12月 |
| 駐車場 | 有 |
| 所在階 | 2階以上 |
| 地上階数 | 7階 |
| 地下階数 | - |
| 住所 | 大阪府大阪市西区阿波座1丁目 |
|
最寄り駅 ・アクセス |
大阪メトロ四つ橋線 本町 |
| 現況 | 空き |
|---|---|
| 入居/引渡 | - |
| 引渡年月 | - |
| 取引形態 | 仲介(媒介) |
| 物件登録日 | 2025年12月4日 |
| 情報更新日 | 2025年12月4日 |